Beschrijving

EEN UNIEKE KANS OM WONEN EN WERKEN TE COMBINEREN IN DEZE CHARMANTE RUIM 144m2 
3-LAAGSE TUSSENWONING MET ACHTERTUIN EN DAKTERRASSEN. 
GEHEEL NAAR EIGEN SMAAK TE RENOVEREN/MODERNISEREN.
IN HET HART VAN HET POPULAIRE REGENTESSEKWARTIER OP LOOPAFSTAND VAN GEZELLIGE PLEINEN, WINKELS, RESTAURANTS, SPECIAALZAKEN EN SPORTFACILITEITEN. GUNSTIG CENTRAAL GELEGEN TEN OPZICHTE VAN OPENBAAR VERVOER EN UITVALSWEGEN, WAARDOOR GOEDE BEREIKBAARHEID NAAR HET BRUISENDE CENTRUM VAN DEN HAAG, CENTRAAL STATION, DE KUST, STRAND EN DE DUINEN.

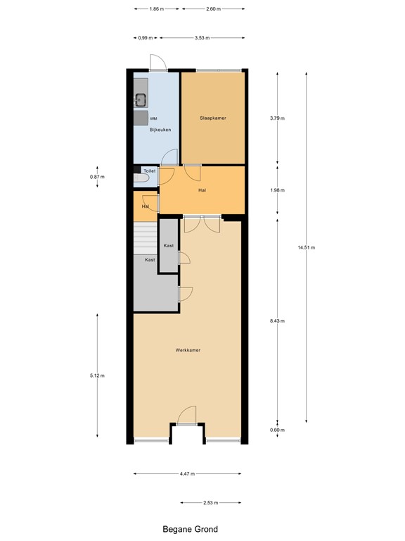
Indeling

Vanaf de straat kom je via de voordeur direct uit in de werkkamer (ca 8,4x4,5m) met kastruimte en vliering, welke multifunctioneel kan worden gebruikt en openslaande deuren heeft naar de achtergelegen ruime hal (ca 2x3,5m).
De hal geeft toegang tot een toilet, slaapkamer (ca 3,8x2,6) aan de achterzijde en een bijkeuken 
(ca 3,8x1,9) met wasmachineaansluiting en deur naar de tuin. De achtertuin (ca 4,5x4,8m) is gelegen op het Zuid/Oosten.

Eerste verdieping

De trap komt uit op de overloop met toegang tot een ruim 2e toilet met opstelplaats van de cv-combiketel en de woonkamer (ca 6,3x4,8m) aan de voorzijde met openhaard en een open trap naar de 2e verdieping. De tussengelegen keuken (ca 2,7x2,9m) heeft een gasfornuis met afzuigkap, afwasmachine, koel/vriescombinatie en geeft toegang tot de achterkamer (ca 3,2x3,6m) met grote dakkoepel en openslaande deuren naar het dakterras (ca 2,6x4,6m).

Tweede verdieping

De trap komt uit op de overloop met kastruimte en geeft toegang tot de betegelde badkamer 
(ca 1,7x2,1m) met douchecabine, wastafel, handdoekenradiator en 3e toilet. De slaapkamer 
(ca 4,8x2,6m) heeft een deur naar het dakterras (ca 2,7x4,5m).

Tuin

De achtertuin (ca 4,5x4,8m) is gelegen op het Zuid/Oosten.

Bijzonderheden

- Bouwjaar 1886
- Eigen grond
- Gebruiksoppervlakte wonen 144m2 (meetrapport aanwezig)
- Gebruiksoppervlakte buitenruimte 26m2
- Energielabel E (geldig tot 21-10-2035)
- Deels voorzien van dubbele beglazing
- Verwarming en warmwater middels Remeha cv-combiketel (12-2022)
- Er is een recent bouwkundig rapport incl. asbestinventarisatie
- Beschermd Dorps- en Stadsgezicht Regentessekwartier
- Gezien het bouwjaar is de ouderdomsclausule van toepassing
- Oplevering in overleg

Kenmerken