Beschrijving

In een rustige, kindvriendelijke en groene omgeving van de wijk Zevenkamp, op loopafstand van 
de Zevenhuizerplas, bieden wij deze goed onderhouden 4- (voorheen 5) kamer tussenwoning te koop aan. De woning beschikt over een voortuin, achtertuin met overkapping, stenen berging en achterom. Verder is de woning is gelegen op eigen grond, voorzien van een openhaard, zonwering en twee dakkapellen aan de achterzijde.
In de directe omgeving bevinden zich winkels, supermarkten, scholen en diverse recreatiemogelijkheden. 
Daarnaast is de woning uitstekend bereikbaar met zowel het openbaar vervoer (metrostation in de buurt) als via de uitvalswegen.

Indeling

Begane grond
De ruime verzorgde voortuin (ca. 4,2x5,5m) leidt naar de entree van de woning. In de hal bevinden zich de meterkast en een modern betegeld vrij hangend toilet met fontein. De fraaie houten vloerdelen in de hal lopen door in de lichte woonkamer (ca. 5,7x4,9m) met openhaard en trapkast. Aan de voorzijde bevindt zich de open keuken (ca. 3,2x2,6m) met diverse inbouwapparatuur. Aan de achterzijde geven openslaande deuren toegang tot de verzorgde achtertuin (ca. 3,2x2,6m) op het Noordoosten gelegen, met een overkapping, stenen berging (ca. 2,4x2,8m) en achterom.

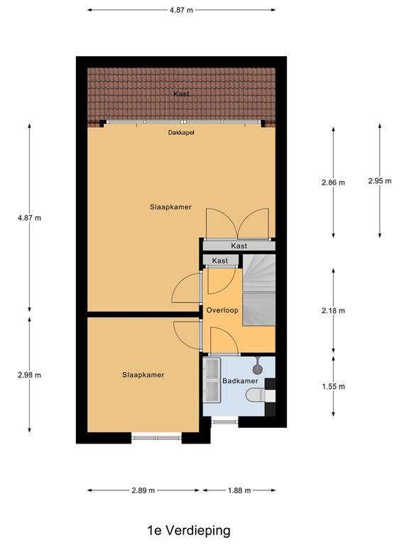
Eerste verdieping

Via de overloop toegang tot een slaapkamer (ca. 3x2,9m) aan de voorzijde en de moderne betegelde badkamer voorzien van een inloopdouche, vrij hangend toilet, dubbele wastafel en designradiator. 
Aan de achterzijde bevindt zich een ruime slaapkamer (ca. 4,9/2,9x4,9), voorheen twee aparte kamers, voorzien van een dakkapel.

Tweede verdieping

De overloop beschikt over een dakraam, aansluitingen voor wasmachine, droger en mechanische ventilatie. De slaapkamer (ca. 4,7x2,9) heeft een dakkapel aan de achterzijde, airconditioning en een vliering voor extra bergruimte.

Tuin

Verzorgde achtertuin (ca. 3,2x2,6m) op het Noordoosten gelegen, met een overkapping, stenen berging (ca. 2,4x2,8m) en achterom.

Bijzonderheden

- Bouwjaar 1983
- Gelegen op eigen grond
- Woonoppervlakte 105m2 (meetrapport aanwezig)
- Perceeloppervlakte 112m2
- Energielabel A (geldig tot 2035)
- Verwarming en warmwater via Stadsverwarming 
- Kunststof kozijnen met isolerende beglazing
- Achterzijde voorzien van 2 dakkapellen (mogelijkheid voor dakkapel aan de voorzijde)
- Zonwering aanwezig
- Woonkamer met openhaard en fraaie houten vloerdelen
- Achtertuin met stenen berging, overkapping en achterom
- Ouderdomsclausule van toepassing (gezien het bouwjaar)
- Oplevering in overleg

Kenmerken