Beschrijving

WELKOM IN DIT GOED ONDERHOUDEN, VERRASSEND RUIME, LICHT EN MODERNE 4-KAMER APPARTEMENT OP DE VIERDE VERDIEPING MET 3 SLAAPKAMERS, EEN BALKON EN BERGING IN DE ONDERBOUW. GELEGEN MIDDEN IN DE KINDVRIENDELIJKE EN GROENE WIJK MEERZICHT, NABIJ RECREATIE (WESTERPARK), WINKELS (WINKELCENTRUM MEERZICHT), SCHOLEN, OPENBAAR VERVOER, TREINSTATION EN UITVALSWEGEN.
HET VERZORGDE COMPLEX MET AFGESLOTEN ENTREE HEEFT EEN ACTIEVE VVE MET EEN MEERJARENONDERHOUDSPLAN EN IS BEZIG MET EEN VERDUURZAMINGSPROJECT.

Indeling

Via de centrale hal met intercom, brievenbussen, liften en trappenhuis bereikt u de woning via de galerij.

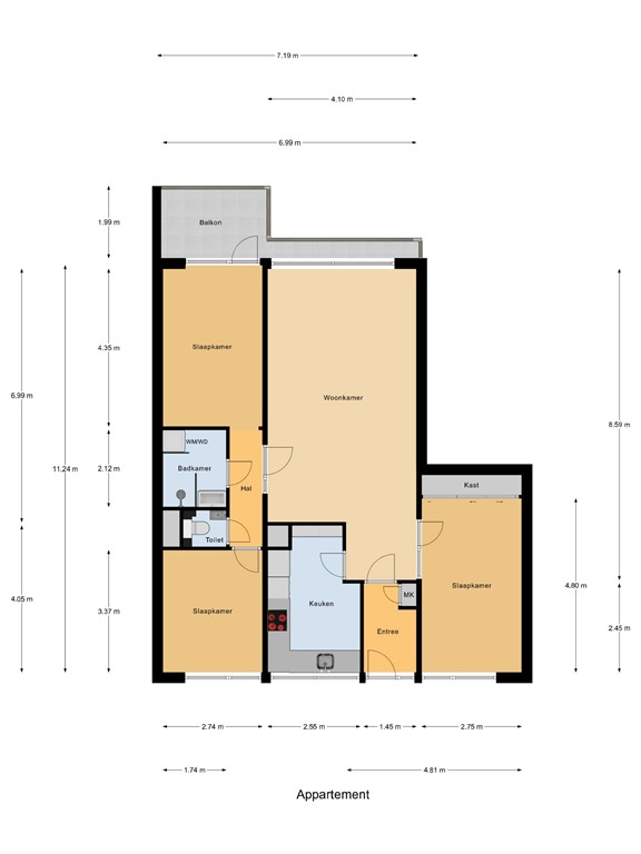
Achter de voordeur komt u in de hal (ca 2,5x1,5m) met garderobe en meterkast. De lichte woonkamer (ca 8,6x4,1m) is een heerlijke leefruimte met een mooi uitzicht en een nette laminaatvloer. Vanuit hier heeft u toegang tot: een ruime slaapkamer (ca 4,8x2,8m) aan de voorzijde voorzien van een praktische schuifkastenwand; de moderne Bruynzeel keuken (ca 4,1x2,6m) ligt eveneens aan de voorzijde en is compleet uitgerust met een 4-pits inductiekookplaat met afzuigkap, vaatwasser, combimagnetron, koelkast en vriezer – ideaal voor wie van koken houdt.

Via een tweede hal bereikt u het moderne toilet met fonteintje en de betegelde badkamer met inloopdouche, wastafelmeubel en aansluitingen voor wasmachine en droger. Aan de voorzijde een tweede slaapkamer (ca 3,4x2,7m) en aan de achterzijde ligt de derde slaapkamer (ca 4,4x2,7m) met directe toegang tot het balkon (ca 2x2,7m), waar u heerlijk kunt genieten van de buitenlucht en het uitzicht.

Op de begane grond in de onderbouw een eigen berging (ca 1,4x5m).

Kortom: een instapklaar appartement met drie slaapkamers, moderne voorzieningen en een fijne buitenruimte – perfect voor starters, doorstromers of gezinnen die comfortabel willen wonen op een centrale locatie.

Balkon

Balkon (ca 2x2,7m) aan de achterzijde.

Bijzonderheden

- Bouwjaar 1972
- Eigen grond
- Woonoppervlakte: 92 m² (meetrapport aanwezig)
- Energielabel C (geldig tot 2035)
- Volledig voorzien van dubbele beglazing
- Keuken, badkamer en toilet zijn gerenoveerd
- Actieve VvE, bijdrage € 319,40 per maand
- Voorschot blokverwarming € 90,- per maand
- Meerjarig onderhoudsplan aanwezig + VVE is bezig met een verduurzamingsplan
- Gezien het bouwjaar wordt de Ouderdomsclausule opgenomen
- Aanvaarding in overleg, kan snel

Kenmerken